Szeles ház

AFHP 1000 Rendszerlemez Álmennyezeti Mennyezetfűtés-Hűtés kialakításához

AFHP 1000 Rendszerlemez Álmennyezeti Mennyezetfűtés-Hűtés kialakításához

AFHP 1000 Rendszerlemez Álmennyezeti Mennyezetfűtés-Hűtés kialakításához

Az AFHP technológiának, a Kassai-Klíma Kft. által történő kifejlesztés szükségének hátterében gazdasági racionalizálás állt, a termék kategóriában történő beruházási költségek minimalizálásával rendkívül magas műszaki színvonal biztosítása és üzembiztonság nyújtása mellett. A kifejlesztett technológia szerves része egy olyan rendszerlemez, amely 40 cm-es (400 mm) tengelytávolságú gipszkarton tartószerkezetre telepítését követően alkalmas a padlófűtési csőhálózatoknál is elterjedt 16 mm külső, és 12 mm belső átmérőjű (puha, könnyedén megmunkálható és környezetbarát alumíniumbetétes Pert-Alu-Pert) fűtési csővezetékek 10 cm-es osztástávolságú helyszíni rögzítésére, így azt a nagyobb belső keresztmetszetéből adódóan alacsony nyomásveszteség jellemzi. Következésképpen a padlófűtési rendszer köreihez hasonlóan 100-120 méteres kör hosszúságok is tarthatóak az osztótól a gyűjtőszerelvényig bezárólag és nem szükséges a nagyobb munkaidő ráfordítással járó Tichelmann kapcsolás körülményesebb megvalósítása, és az ahhoz szükséges magas költségű préskötéses szerelvények alkalmazása sem. Összességében egy jóval alacsonyabb beruházási költséggel, kb. 80-85%-al kevesebb toldó elemekkel telepített, üzembiztos, ugyanakkor szerelőbarát, rugalmasabb helyszíni telepítést eredményező technológia valósítható meg.

Az AFHP 1000 mennyezetfűtő-hűtő rendszerlemezek minden esetben 370 mm szélességben 0,5 mm vastagságú 1000 mm hosszú horganyzott lemezből készülnek, melyek rögzítése popszegecseléssel (200 mm távközökkel), 400 mm-es tengelytávolságokra telepített gipszkarton 60x27 mm-es CD szerelő tartószerkezeti profil felület alsó síkjára történik. A termék teljes hossza a helyiség méretétől függően változhat. A maximális mértékű beépíthetőséget és a rendszerlemezek mennyiségét meghatározza a rendszerlemezekbe a helyszínen beépítendő csővezetékek forduló szakaszok is, a megfelelő telepítéséhez így szükséges további 300-300 mm széles szerelősáv biztosítása minden egyes helyiségben a rendszerlemezek sorainak két vége és a válaszfalak között. Az AFHP rendszerlemezek beépítése előtt az érintett területen az álmennyezeti térben futó más épületgépészeti-, elektromos- és egyéb szerelési munkálatokat el kell végeznie, mert a rendszerlemezes mennyezetfűtő-hűtő csővezeték rendszer elhelyezése után erre már nincs lehetőség. Ezenfelül megrendelőnek feladata és kötelessége megfelelő minőségű, méretezett lámpatest kiosztási terv elkészítése és annak megfelelő időben történő szolgáltatása a tervezőknek még a tervezői megbízás dátumának kezdeti fázisa előtt, a kivitelezőknek még az árajánlat készítésének kérelmének dátuma során.

Az APHP rendszerlemezek rögzítéséhez a tartószerkezetépítő szakembernek szükséges betartania a gipszkarton rendszer telepítésére vonatkozó instrukciókat és szerelősávokat ahhoz, hogy a fűtéstechnikai rendszert telepítő szakember munkájához biztosítani tudja a 16 mm átmérőjű csővezetékek gipszkarton CD tartóprofil felett történő átvezetését, az egyig sávban press toldó egál idom közbeiktatásával (amelyből a 4. ábrán demonstrált módon látható, hogy csupán 7 db toldás elegendő 13,6 m2 alapterületű hálószoba esetén)!! A tartószerkezet kialakítására vonatkozó előírások betartását tehát a mennyezetfűtési-hűtési osztó-gyűjtő szerelvényekbe kötött előremenő és visszatérő csővezeték szakaszok telepítéséhez szükséges álmennyezeti tartószerkezetek felett történő átbújtatásának szerelési hely igénye indokolja. Gyártás megrendelés előtt a megrendelőnek helyszíni méretvétellel ellenőrizni kell a mennyezetfűtés(-hűtés) gépészeti kiviteli tervlapokon bejelölt gipszkarton szerelőprofilok irányát, és azok 400 mm tengelytávolságát, elhelyezhetőségét, továbbá minden helyiségben azt is, hogy rendelkezésre áll-e az előírt min. 10 cm légrés a felső tartóprofil felső síkja és a födémszerkezet, vagy szarufa, gerenda...stb. alsó síkja között. Eltérés esetén a megrendelőnek át kell szereltetnie az általa kijelölt gipszkartont és annak tartószerkezetét építő szakembernek a tartószerkezetet a terveknek megfelelően!

A tartószerkezet építő szakember által a 400 mm tengelytávolsággal a födémszerkezethez megfelelő (pl. direktfüggesztő) elemekkel rögzített 60x27 mm CD profilszerkezetek kiépítését követően a szerkezetépítőnek a feleslegesen kilógó függesztő elemeket a tartóprofil síkjára szükséges vágnia, ezzel elkerülve a tartószerkezet és a gépészeti mennyezetfűtő-hűtő csővezeték rendszer ütközését. Következésképpen csak ezt követően minősülhet készre jelentett állapotúnak a tartószerkezet kialakítása! A mennyezetfűtő(-hűtő) rendszer telepítését megelőzően kötelezően előírt kétirányú, szabványos méretű CD60/27 fémprofilra (bordavázra) szerelt gipszkarton álmennyezet és annak 400 mm-es tengelytávolságra (megfelelő teherbírású függesztett CD60/27 tartóprofilokra csúsztatható módon rögzített) CD60/27  szerelőprofiljainak UD profilok felhasználásával kialakított tartószerkezet kialakítását, amelynek telepítése, min. 10 cm levegő rés biztosításával (a felső tartóprofil felső síkja és a födémszerkezet, vagy szarufa, gerenda…stb. alsó síkja között). A gipszkarton álmennyezeti tartószerkezet helyszíni kialakításának készre jelentését követően lesz lehetőség az AFHP mennyezetfűtő-hűtő rendszer rögzítésére.

Az ár csak a rendszerlemez anyagköltségét tartalmazza!

Ár: 10 058 Ft

AFHP 1000 Rendszerlemez Álmennyezeti Mennyezetfűtés-Hűtés kialakításához

AFHP 1000 Rendszerlemez Álmennyezeti Mennyezetfűtés-Hűtés kialakításához

Az AFHP technológiának, a Kassai-Klíma Kft. által történő kifejlesztés szükségének hátterében gazdasági racionalizálás állt, a termék kategóriában történő beruházási költségek minimalizálásával rendkívül magas műszaki színvonal biztosítása és üzembiztonság nyújtása mellett. A kifejlesztett technológia szerves része egy olyan rendszerlemez, amely 40 cm-es (400 mm) tengelytávolságú gipszkarton tartószerkezetre telepítését követően alkalmas a padlófűtési csőhálózatoknál is elterjedt 16 mm külső, és 12 mm belső átmérőjű (puha, könnyedén megmunkálható és környezetbarát alumíniumbetétes Pert-Alu-Pert) fűtési csővezetékek 10 cm-es osztástávolságú helyszíni rögzítésére, így azt a nagyobb belső keresztmetszetéből adódóan alacsony nyomásveszteség jellemzi. Következésképpen a padlófűtési rendszer köreihez hasonlóan 100-120 méteres kör hosszúságok is tarthatóak az osztótól a gyűjtőszerelvényig bezárólag és nem szükséges a nagyobb munkaidő ráfordítással járó Tichelmann kapcsolás körülményesebb megvalósítása, és az ahhoz szükséges magas költségű préskötéses szerelvények alkalmazása sem. Összességében egy jóval alacsonyabb beruházási költséggel, kb. 80-85%-al kevesebb toldó elemekkel telepített, üzembiztos, ugyanakkor szerelőbarát, rugalmasabb helyszíni telepítést eredményező technológia valósítható meg.

Az AFHP 1000 mennyezetfűtő-hűtő rendszerlemezek minden esetben 370 mm szélességben 0,5 mm vastagságú 1000 mm hosszú horganyzott lemezből készülnek, melyek rögzítése popszegecseléssel (200 mm távközökkel), 400 mm-es tengelytávolságokra telepített gipszkarton 60x27 mm-es CD szerelő tartószerkezeti profil felület alsó síkjára történik. A termék teljes hossza a helyiség méretétől függően változhat. A maximális mértékű beépíthetőséget és a rendszerlemezek mennyiségét meghatározza a rendszerlemezekbe a helyszínen beépítendő csővezetékek forduló szakaszok is, a megfelelő telepítéséhez így szükséges további 300-300 mm széles szerelősáv biztosítása minden egyes helyiségben a rendszerlemezek sorainak két vége és a válaszfalak között. Az AFHP rendszerlemezek beépítése előtt az érintett területen az álmennyezeti térben futó más épületgépészeti-, elektromos- és egyéb szerelési munkálatokat el kell végeznie, mert a rendszerlemezes mennyezetfűtő-hűtő csővezeték rendszer elhelyezése után erre már nincs lehetőség. Ezenfelül megrendelőnek feladata és kötelessége megfelelő minőségű, méretezett lámpatest kiosztási terv elkészítése és annak megfelelő időben történő szolgáltatása a tervezőknek még a tervezői megbízás dátumának kezdeti fázisa előtt, a kivitelezőknek még az árajánlat készítésének kérelmének dátuma során.

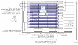
Az APHP rendszerlemezek rögzítéséhez a tartószerkezetépítő szakembernek szükséges betartania a gipszkarton rendszer telepítésére vonatkozó instrukciókat és szerelősávokat ahhoz, hogy a fűtéstechnikai rendszert telepítő szakember munkájához biztosítani tudja a 16 mm átmérőjű csővezetékek gipszkarton CD tartóprofil felett történő átvezetését, az egyig sávban press toldó egál idom közbeiktatásával (amelyből a 4. ábrán demonstrált módon látható, hogy csupán 7 db toldás elegendő 13,6 m2 alapterületű hálószoba esetén)!! A tartószerkezet kialakítására vonatkozó előírások betartását tehát a mennyezetfűtési-hűtési osztó-gyűjtő szerelvényekbe kötött előremenő és visszatérő csővezeték szakaszok telepítéséhez szükséges álmennyezeti tartószerkezetek felett történő átbújtatásának szerelési hely igénye indokolja. Gyártás megrendelés előtt a megrendelőnek helyszíni méretvétellel ellenőrizni kell a mennyezetfűtés(-hűtés) gépészeti kiviteli tervlapokon bejelölt gipszkarton szerelőprofilok irányát, és azok 400 mm tengelytávolságát, elhelyezhetőségét, továbbá minden helyiségben azt is, hogy rendelkezésre áll-e az előírt min. 10 cm légrés a felső tartóprofil felső síkja és a födémszerkezet, vagy szarufa, gerenda...stb. alsó síkja között. Eltérés esetén a megrendelőnek át kell szereltetnie az általa kijelölt gipszkartont és annak tartószerkezetét építő szakembernek a tartószerkezetet a terveknek megfelelően!

A tartószerkezet építő szakember által a 400 mm tengelytávolsággal a födémszerkezethez megfelelő (pl. direktfüggesztő) elemekkel rögzített 60x27 mm CD profilszerkezetek kiépítését követően a szerkezetépítőnek a feleslegesen kilógó függesztő elemeket a tartóprofil síkjára szükséges vágnia, ezzel elkerülve a tartószerkezet és a gépészeti mennyezetfűtő-hűtő csővezeték rendszer ütközését. Következésképpen csak ezt követően minősülhet készre jelentett állapotúnak a tartószerkezet kialakítása! A mennyezetfűtő(-hűtő) rendszer telepítését megelőzően kötelezően előírt kétirányú, szabványos méretű CD60/27 fémprofilra (bordavázra) szerelt gipszkarton álmennyezet és annak 400 mm-es tengelytávolságra (megfelelő teherbírású függesztett CD60/27 tartóprofilokra csúsztatható módon rögzített) CD60/27  szerelőprofiljainak UD profilok felhasználásával kialakított tartószerkezet kialakítását, amelynek telepítése, min. 10 cm levegő rés biztosításával (a felső tartóprofil felső síkja és a födémszerkezet, vagy szarufa, gerenda…stb. alsó síkja között). A gipszkarton álmennyezeti tartószerkezet helyszíni kialakításának készre jelentését követően lesz lehetőség az AFHP mennyezetfűtő-hűtő rendszer rögzítésére.

Az ár csak a rendszerlemez anyagköltségét tartalmazza!

Letöltések

AFHP rendszerlemez termékbemutató prospektus

Videók

Ehhez a termékhez nem áll rendelkezésre videó!

Ossza meg ismerőseivel!


Érdekelődés

Minden jog fenntartva a Kassai Klíma Kft. részére! 2020 Oldaltérkép